Community Tip - Did you get an answer that solved your problem? Please mark it as an Accepted Solution so others with the same problem can find the answer easily. X
Greetings all
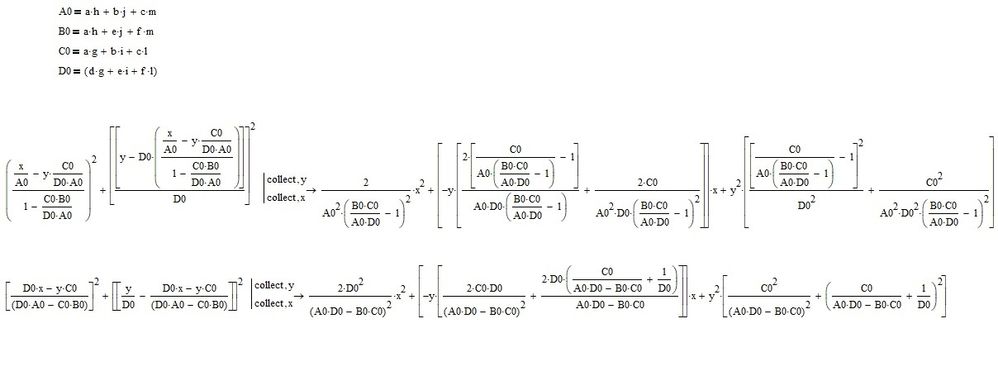
I would like to simplify the expression in the attached worksheet (and image), however I am faced with the "out of memory" error, which occurs after about 30minutes of processing. I have 16GB ram, i7-4790 CPU at 3.6Ghz, 64 bit Windows 10, MathCAD version 15.
Please note that all letters are variables, and I intend for none of them to hold any particular value. To avoid confusing MathCAD I have tried replacing e,i, and j by different letters, but to no avail.
I predict that the result will be in numerator/denominator form, with numerator having a sum of x^2*y^2, x^2, y^2, xy, and the denomiator having neither x nor y.
Please would someone comment on the use of "simplify,max" and if it has any relevance to me.
Thank you kindly.
I noticed that ther is one big expression occurs twice in your term and so I thought that we could have more success with some kind of substitutiuon. I guess without luck (didn't wait for the last expression to finish simplfying).
I think the painful truth is that Mathcads symbolics simply isn't good enough.
Furthermore I won't expect a short result expression - it rather would be quite large, I guess.
Hi,
a possible simplification could be the following:
For something like this, you might want to think about using Maple. Mathcad's symbolics aren't strong enough.
