Question
Appearance of Cosmetic Threads
- July 8, 2011
- 3 replies
- 1375 views
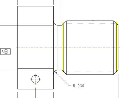
Are there options to limit the solid line appearance of cosmetic threads
(see attached pic)?
WF4
Thank you.
-Art
.
.
.
.
This message (including any attachments) contains
confidential and/or proprietary information intended
only for the addressee. Any unauthorized disclosure,
copying, distribution or reliance on the contents of this
information is strictly prohibited and may constitute a violation
of law. If you are not the intended recipient, please notify the
sender immediately by responding to this e-mail, and delete the
message from your system. If you have any questions about this
e-mail please notify the sender immediately.
This thread is inactive and closed by the PTC Community Management Team. If you would like to provide a reply and re-open this thread, please notify the moderator and reference the thread. You may also use "Start a topic" button to ask a new question. Please be sure to include what version of the PTC product you are using so another community member knowledgeable about your version may be able to assist.
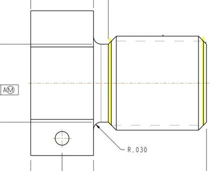
(see attached pic)?
WF4
Thank you.
-Art
.
.
.
.
This message (including any attachments) contains
confidential and/or proprietary information intended
only for the addressee. Any unauthorized disclosure,
copying, distribution or reliance on the contents of this
information is strictly prohibited and may constitute a violation
of law. If you are not the intended recipient, please notify the
sender immediately by responding to this e-mail, and delete the
message from your system. If you have any questions about this
e-mail please notify the sender immediately.
This thread is inactive and closed by the PTC Community Management Team. If you would like to provide a reply and re-open this thread, please notify the moderator and reference the thread. You may also use "Start a topic" button to ask a new question. Please be sure to include what version of the PTC product you are using so another community member knowledgeable about your version may be able to assist.

