Solved
Hatch of a section not completely shown
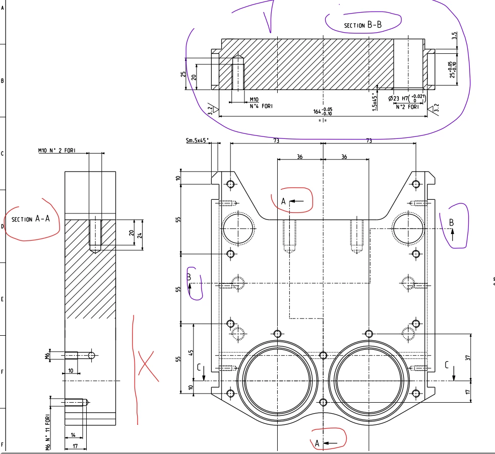
I am using Creo Parametric Release 11.0 and Datecode11.0.3.0; in a single view, the hatch of a section is not completely shown. In a different view with the same charatheristics, the hatch is correctly shown.


