Importing DWG into Isodraw 7.3
I'm having issues importing a DWG into Isodraw 7.3. We are just looking at migrating off of 7.0 and of course looking at the latest version. First thing we tried was importing a DWG, which is a common task we do. This is the format our electrical schematics and controls drawings are done in.
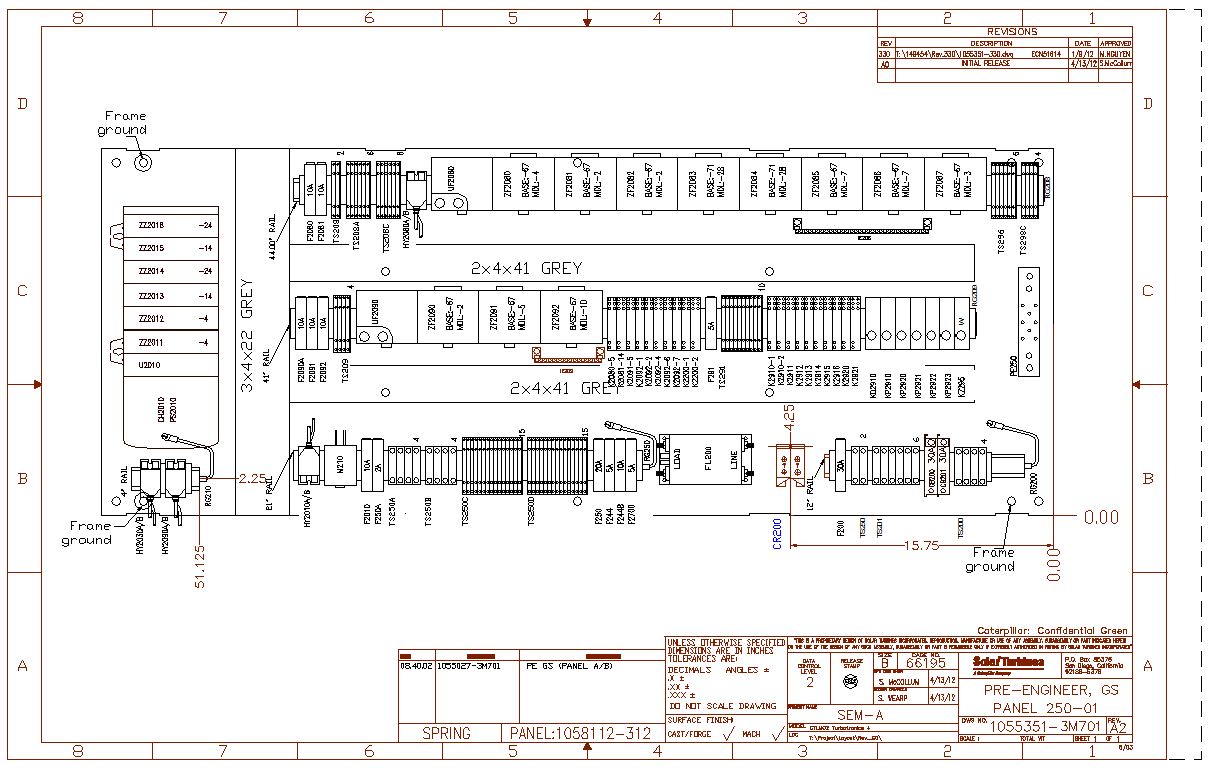
This is what the Autocad image looks like:

When imported into Isodraw it looks like:

I submitted a PTC ticket on this as well. But if anyone has seen this I'd love to hear from you.

