Taper mill tool displays wrong in Pro/E tool window and resulting tool path is wrong.
- June 11, 2013
- 3 replies
- 1598 views
Hi all,
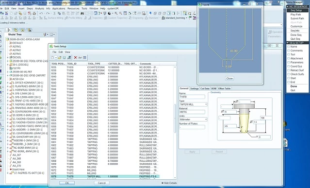
We have over the years had random problems with some tools, and now it is specifically the Taper mill tool. When defining the tool setup parameters the tool window is not showing the correct look of the tool, as would be expected by the values put in. Please seecorrect and wrong picture attached.
When the tool window displays the tool in a wrong way, the resulting tool path programme will be wrong as well ! So it is not just a display issue.
We're not sure what is causing this but it is also related to which build of Pro/E we use. When we recently upgraded fromWF5 M160 to M180 (due to supported version needed forPDMLink)theseproblems enhanced and the NC engineers were really annoyed.
As this happens randomly, on differentCAD objects I'm not sure how tofind the source of the problem.
If you restart Pro/E or clear the memory and open up the CAD object again it can work, but might also fail and you have to try anderase/reopen it all once again.
We are still on WF5 (Creo Element/Pro M180) and I have not yet tried if this is a problem in Creo Parametric. But does anyone recognize this behavior ?
Thanks and regards,
Matt
This thread is inactive and closed by the PTC Community Management Team. If you would like to provide a reply and re-open this thread, please notify the moderator and reference the thread. You may also use "Start a topic" button to ask a new question. Please be sure to include what version of the PTC product you are using so another community member knowledgeable about your version may be able to assist.
