How do I create variation of plate with several holes
Hello,
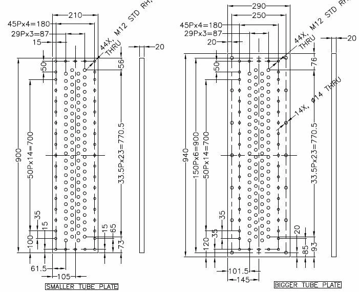
Please refer the drawing of 2 plates with several holes. I would like to create lets say smaller plate first and when I need to create bigger plate I would like to reuse smaller plate and by changing only few parameters new model should be ready. I have seen functionality in SWX which is called driveworks.
How to achieve this with Creo modeling? Thanks in advance.

