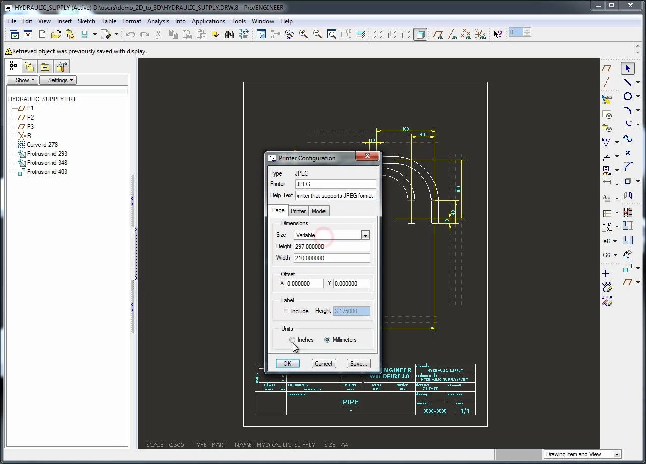
VVladimirPalffy14-AlexandriteForum|Forum|13 years agoMay 10, 2012QuestionHow to Create jpeg from drawingForum|Forum|13 years agoMay 10, 20120 replies1417 viewsQuick video tutorial - How to Create jpeg from drawing in Pro/ENGINEER Wildfire 3.0 (view in My Videos)